【昕暉建設‧昕暉日初】就在永康大灣重劃區內,是第一個建案開賣,2~3房 29-37坪,預售屋地上14層、地下3層,共2棟107戶,4間店面,車位規畫共108個車位,配比1:1.01,基地位置臺南市永康區永榮二街、永榮三街。

薔薇媽媽累積了一些看屋的經驗,總覺得建設公司的品牌很重要,因為對於品質和施工的要求是可以看出一個建設公司願不願意負責的態度,這幾年有些建設公司也開出防水保固3年較久的保證,真的就讓人較放心!
昕暉建設在台南也有幾個案子了,一樓採戴雲發結構耐震,內裝品質的要求中等水準之上,TOTO衛浴設備,其他設備也大概和別的建案大同小異,國內品牌或日本品牌。房價一坪也都開到40幾以上,車位價錢也已經來到200萬。

如果想多了解昕暉日初建案的品質施工等,可以去了解或參觀昕暉建設在台南的其他建案:安平五期「昕都心」、永康中華路「昕願景」、東區德高重劃區「昕視界」。寶佳集團旗下子公司眾多,小心謹慎選擇好公司,未來也才有保障。
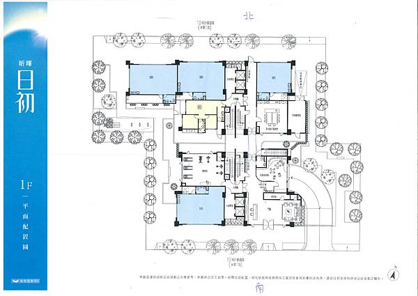
公設34.45%,基本公設有:健身房、兒童故事屋和才藝教室。

格局:一層樓四戶,兩戶三房,兩戶兩房,兩部電梯。扣掉公設,兩房室內只剩17坪的空間大小,三房剩27坪。

優點
1.具有交通優勢 ,至南科不用經高速公路,避塞車之苦。
2.因為是大灣重劃區第一案,所以有價格優勢,陸續的建案可能都以他們的價位往上遞增。
3.全邊間開窗,通風良好。
4.周遭生活機能好,交通便利。
缺點
1.地勢較低,可能會積水。旁邊有做滯洪池,應該會有改善。
2.永康往市區某些階段容易塞車。
3.上高速公路之前和前段高速公路較易塞車。
★如欲索取傢俱配置圖,可以加入社團喔~~
★看屋小撇步: 薔薇媽媽累積幾次看房的經驗,以下整理一些看房的重點考量,讓大家可以選到比較好的建案!
|
★★★★★建設公司 |
|
|
★★★★建築物主體 |
|
|
★★★★生活機能 |
|
|
★★★★增值空間 |
|
|
★★★周遭環境 |
|
●如何當個包租公課程推薦連結,創造屬於你的現金被動收入!(請點我)
其他文章:
【麗寶集團‧福容ONE】台南中西區高級景觀宅新成屋大樓~薔薇媽媽看屋手札
【春園建設‧南灣之星】台南南區舉喜重劃區預售屋大樓~薔薇媽媽看房日記
【聯上海棠】台南絕版2字頭/坪安平區海灣景觀宅~薔薇媽媽的看屋手札
【品舜/龍舜建設.未來馥】永康區正核心探索公園旁大樓~薔薇媽媽的看屋手札
【永康大灣自辦市地重劃區】鬧中取靜正核心市區~薔薇媽媽的看屋手札
【和宜‧世界巨星】南紡夢時代蛋黃平實重劃區建案~薔薇媽媽的看屋手札
【森安邦】台南預售屋南區華森建業富立建設子公司~薔薇媽媽的看屋手札
【皇龍雲鼎】台南預售屋中西區運河星鑽特區~薔薇媽媽的看屋手札

留言列表

