【永康大灣自辦市地重劃區】--永康未來馥建案
【未來馥】位於台南永康重劃區附近,23樓天際線,一層四戶均質50坪,綠包覆零店面.限定限量84席,鄰地政、衛生所、崑山國小、探索公園、永大夜市,離高速公路近,周邊機能優。
品舜開發.龍舜建設府城在地二十餘載 ,以蓋透天豪宅起家,現在也蓋大廈,龍舜東越、東方、東華等大廈都是近幾年的作品,所用建材也都比較經得起考驗。建設公司就在龍舜東方大樓一樓,離未來馥很近,對於住戶的問題都能就近處理。
★相關文章:
【永康大灣自辦市地重劃區】鬧中取靜正核心市區~薔薇媽媽的看屋手札

未來馥外觀示意圖
▲【未來馥】優缺點
|
缺點 |
優點 |
|
|
★歡迎點以上的FB社團鍵,加入薔薇媽媽的台南買屋賣屋分享交流社團,獲得更多的資訊以及能享有和社友互通有無和討論的空間喔!
→聯絡薔薇媽媽:linqiaowei710@gmail.com

龍舜建設建案風格圖

龍舜建設建案風格圖

未來馥基地施工圖

基地衛星圖
●大樓基本資料
戶數:84戶住家
樓層:地上23層,地下4層,
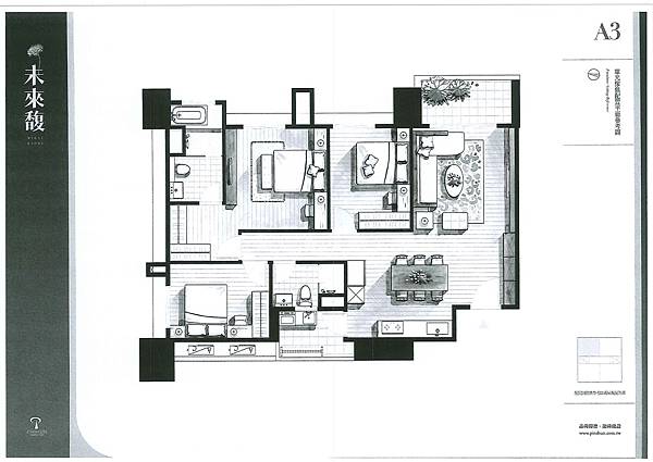
格局:三房(46、50、51坪) 、 3+1房(57坪) 均質邊間格局
停車位:汽車平面式133個
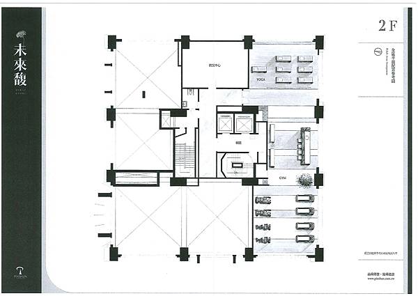
公設比:33.5%,1~2 樓公設有:交誼廳、健身房、瑜珈教室、兒童遊戲室、LOUNGE BAR
建材品質:德、日知名品牌,品質優良有保證
價格:一坪至少都要35萬以上,車位160萬以上,少說都要兩千萬上下





●學區國小
永信國小開車四分鐘
永康國小開車四分鐘
永康國中開車五分鐘
●生活機能優
7-11走路2分鐘
永大夜市2分鐘
探索公園2分鐘
全聯福利中心永康北灣8分鐘
中華路家樂福10分鐘
南紡夢時代15分


●交通便利
永康火車站8分鐘
北上大灣交流道10分鐘
永康交流道10分鐘


▲【未來馥】優缺點
|
缺點 |
優點 |
|
|
★相關文章:
【永康大灣自辦市地重劃區】鬧中取靜正核心市區~薔薇媽媽的看屋手札
★歡迎點以下的FB社團鍵,加入薔薇媽媽的台南買屋賣屋分享交流社團,獲得更多的資訊以及能享有和社友互通有無和討論的空間喔!
→聯絡薔薇媽媽:linqiaowei710@gmail.com
●如何當個包租公課程推薦連結,創造屬於你的現金被動收入!(請點我)
★友好痞客邦部落格:【愛情小說專賣店】
其他文章:
【聯上海棠】台南絕版2字頭/坪安平區海灣景觀宅~薔薇媽媽的看屋手札
【品舜/龍舜建設.未來馥】永康區正核心探索公園旁大樓~薔薇媽媽的看屋手札
【永康大灣自辦市地重劃區】鬧中取靜正核心市區~薔薇媽媽的看屋手札
【和宜‧世界巨星】南紡夢時代蛋黃平實重劃區建案~薔薇媽媽的看屋手札
【森安邦】台南預售屋南區華森建業富立建設子公司~薔薇媽媽的看屋手札
【皇龍雲鼎】台南預售屋中西區運河星鑽特區~薔薇媽媽的看屋手札

